The Deep Time Project
Transtectonics
Cinematic-Essays
Words
Worlds
Material-Events
The Deep Time Project
Menu
Transtectonics
Cinematic-Essays
Words
Worlds
Material-Events
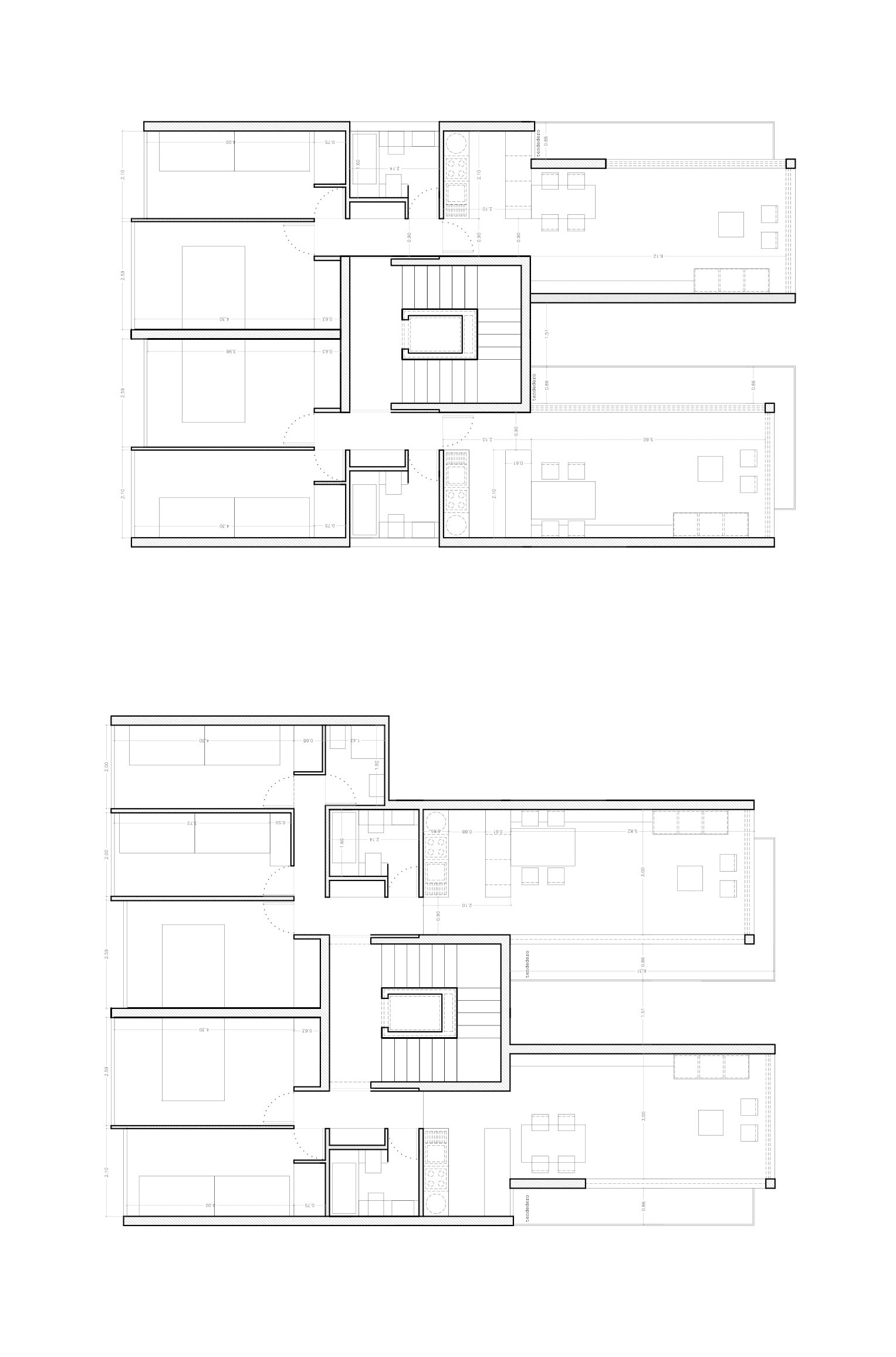
Social Housing Madrid
Social Housing Madrid
.
Related Items
Paper Chandeliers
Transtectonics, 2025
Tectonics of Wisdom
Transtectonics, 2025
The Book at the Edge
Architecture, 2025
Museum and Library in Taichung
Architecture, 2025
Wooden Bubble
Transtectonics, 2025